AMELIE VILLA

Chủ nhân ngôi nhà yêu thích phong cách Industrial – mạnh mẽ, bụi bặm nhưng vốn không dễ để ứng dụng trong đời sống thường ngày. Thách thức đặt ra là làm sao giữ được chất thô mộc ấy, mà vẫn mang lại sự tiện nghi và thoải mái cho một gia đình trẻ. Gam xám lạnh của sắt, bê tông được cân bằng bằng gạch nung và da ấm, để không gian vừa cá tính, vừa gần gũi. Không chỉ là một phong cách thiết kế, mà công năng từng vị trí cũng được tính toán hợp lý, tạo nên một ngôi nhà “chất” nhưng vẫn đủ ấm áp để cả gia đình gắn bó.

PHÒNG KHÁCH
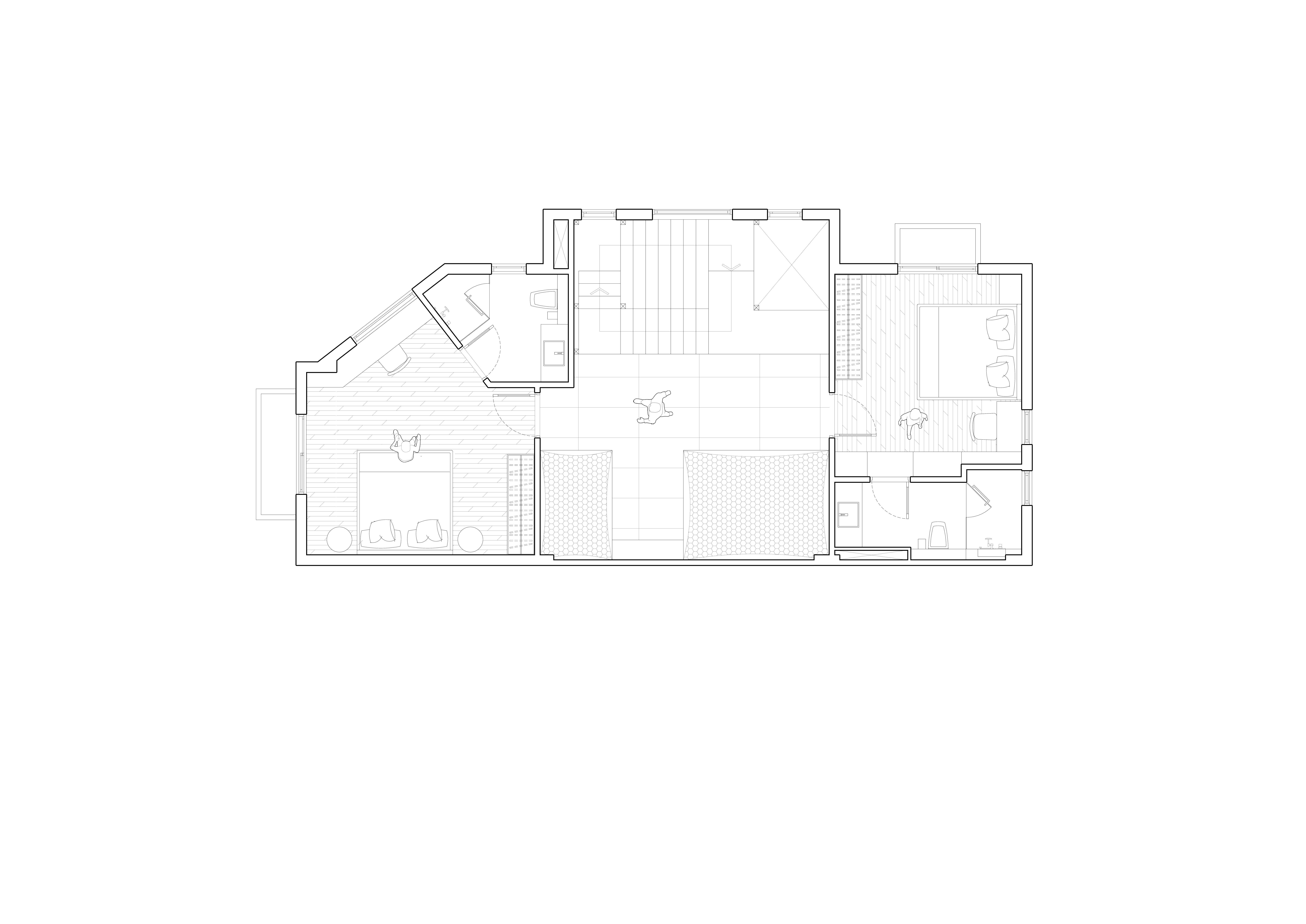
PHÒNG NGỦ
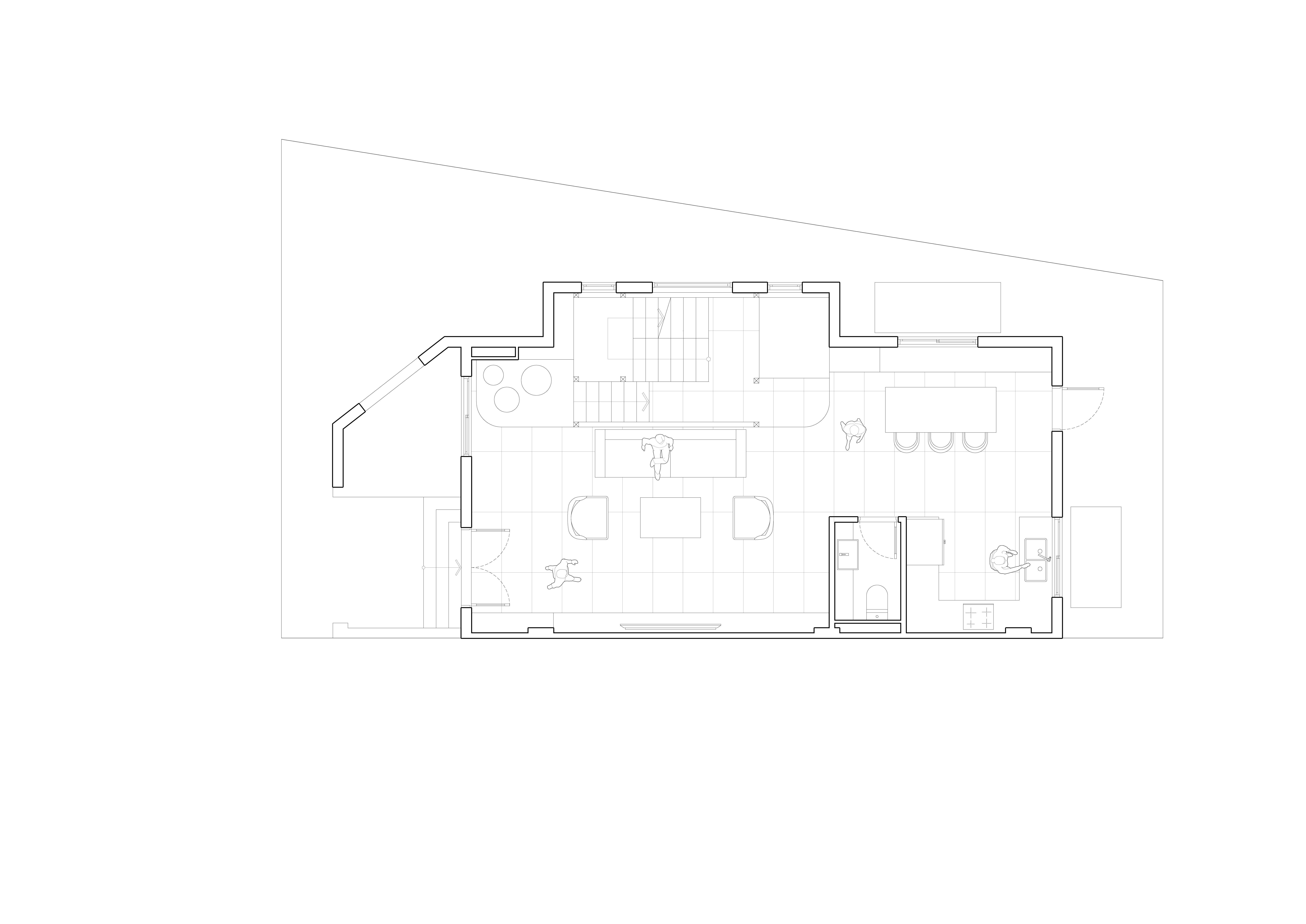
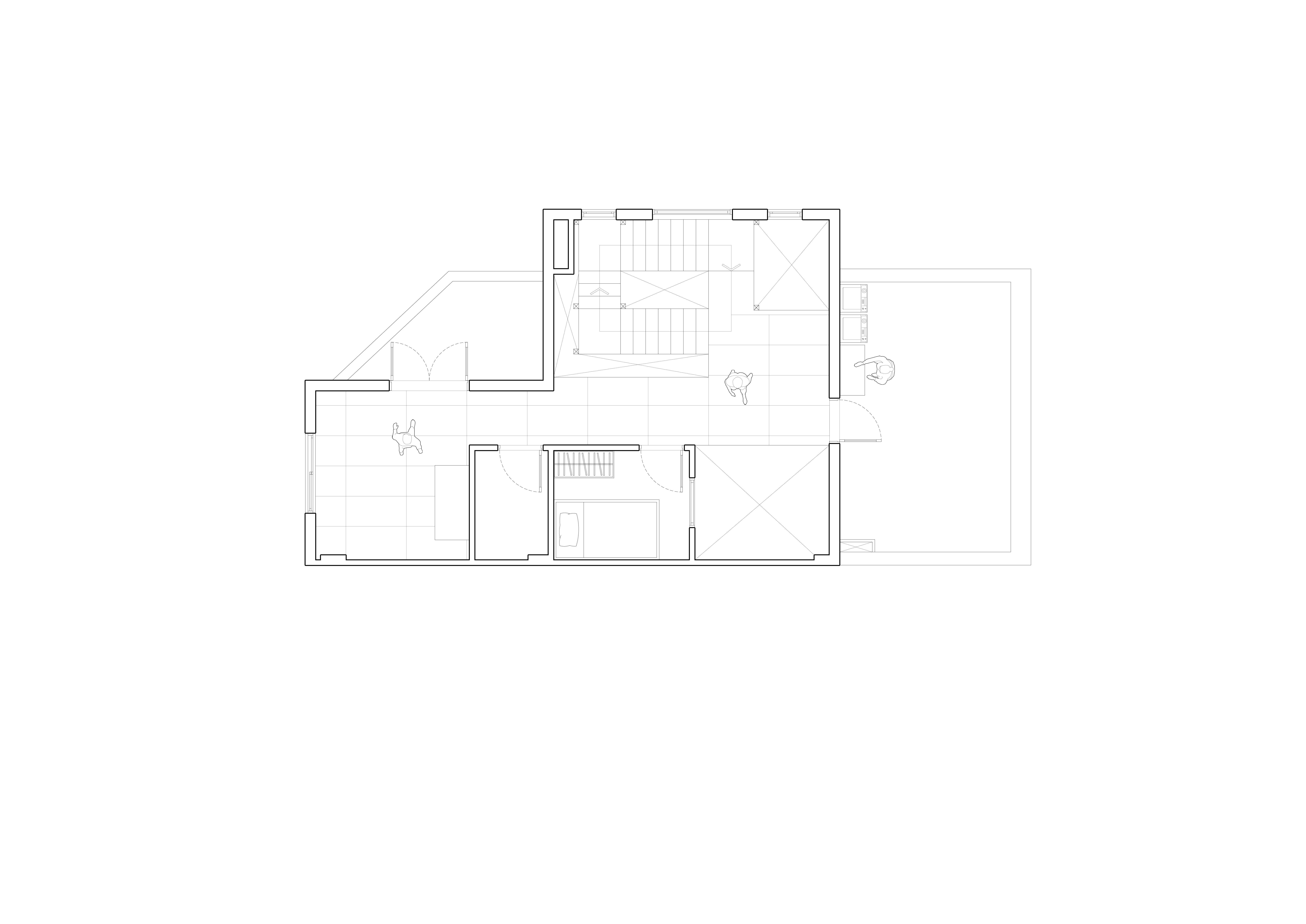
BẢN VẼ
THIẾT KẾ NỘI THẤT
APS CONCEPT
VỊ TRÍ
THÀNH PHỐ HỒ CHÍ MINH
DIỆN TÍCH XÂY DỰNG
222m2