Casa Pura

Casa Pura mang ý nghĩa ‘ngôi nhà trong lành, thuần khiết’, trong đó casa là nhà, còn pura gợi sự tinh khôi và thanh sạch. Chính sự trong lành ấy mở ra cảm giác tĩnh lặng nội tại, đưa con người thoát khỏi nhịp sống vội vã ngoài kia. Sự tinh khôi và thanh sạch của không gian khơi gợi trạng thái an nhiên, khiến tâm trí được gột rửa và trở nên bình yên hơn mỗi ngày. Thuần khiết ở đây không chỉ hiện hữu trong nghĩa đen – bầu không khí, ánh sáng, sự tinh giản giao hòa cùng thiên nhiên, mà còn trong nghĩa bóng – khi mà ngôi nhà trở thành nơi trú ẩn cho tâm hồn, mang lại sự cân bằng và lắng đọng bên trong.

Đề bài của Casa Pura là làm mới hoàn toàn không gian từ hai căn nhà phố liền kề được bàn giao thô. Không đơn thuần là thiết kế mới, việc cải tạo lại khi đập thông cần tính toán rất kỹ lưỡng để đảm bảo an toàn cho kết cấu hiện trạng. Các kiến trúc sư đã tận dụng ánh sáng và khoảng thông tầng làm chất liệu sáng tác, tạo nên sự luân chuyển về cảm xúc khi chọn cách biến đổi nhịp thang ở từng tầng. Mỗi khung cửa sổ hay vách kính đón nắng đều được bố trí một cách tinh tế. Nhờ đó, mỗi thời khắc trong ngày đều toát lên một cảm giác và sắc thái riêng biệt.

Ngôi nhà này được xây dựng với mục tiêu hàng đầu là đảm bảo an toàn cho trẻ nhỏ, vì thế mọi chi tiết, dù nhỏ nhất, đều được thiết kế có góc bo tròn mềm mại, tạo nên một điểm nhấn thẩm mỹ xuyên suốt toàn bộ thiết kế. Các đường cong của ngôi nhà được xử lý bởi những người thợ thủ công, chuyển tiếp liền mạch từ mặt đất lên đến tầng thượng, điều này không chỉ giúp giảm nhiễu thị giác mà còn tăng được tính “tĩnh” cho tổng thể ngôi nhà. Chúng tôi không cố gắng tạo nên những điểm nhấn độc đáo nhưng xa lạ ở công trình này, thay vào đó, đội ngũ thiết kế tập trung xây dựng các trải nghiệm mới mẻ trong không gian. Các khoảng thông tầng đều gắn với lối giao thông chung để mở thoáng và giải phóng tầm nhìn cho người sử dụng. Tổng thể bố cục được chắt lọc rất tinh giản, dù là thiết kế mở nhưng vẫn có sự ngăn cách giữa các không gian sinh hoạt. Thay vì sử dụng các vách tường ngăn cách, chúng tôi chọn sử dụng hệ cửa lùa Slim khi cần phải ngăn không gian hoặc giảm tiếng ồn.

Khi bước chân lên từng bậc thang, mỗi tầng sẽmở ra một cảm xúc khác biệt, càng lên tầng cao sảnh thang càng mở thoáng hơn, đó không đơn thuần là di chuyển mà là cảm giác mình đang dấn bước vào một hành trình thẩm mỹ, nơi tầm nhìn thị giác được trải nghiệm đa góc độ. 

Với một công trình mà các đường nét kiến trúc đóng vai trò trung tâm, ngoài việc khéo léo sử dụng các sắc thái ánh sáng và hạn chế tối đa những món đồ trang trí nhằm mang lại cảm giác nhẹ nhàng, tĩnh lặng, thì việc sử dụng vật liệu cũng được tinh giản. Toàn bộ căn nhà được thiết kế với tông màu sáng, kết hợp nội thất bằng gỗ nhạt, tường màu be, sàn gỗ màu tự nhiên và đá trắng tạo sự nhẹ nhàng, tĩnh lặng trong từng chi tiết.

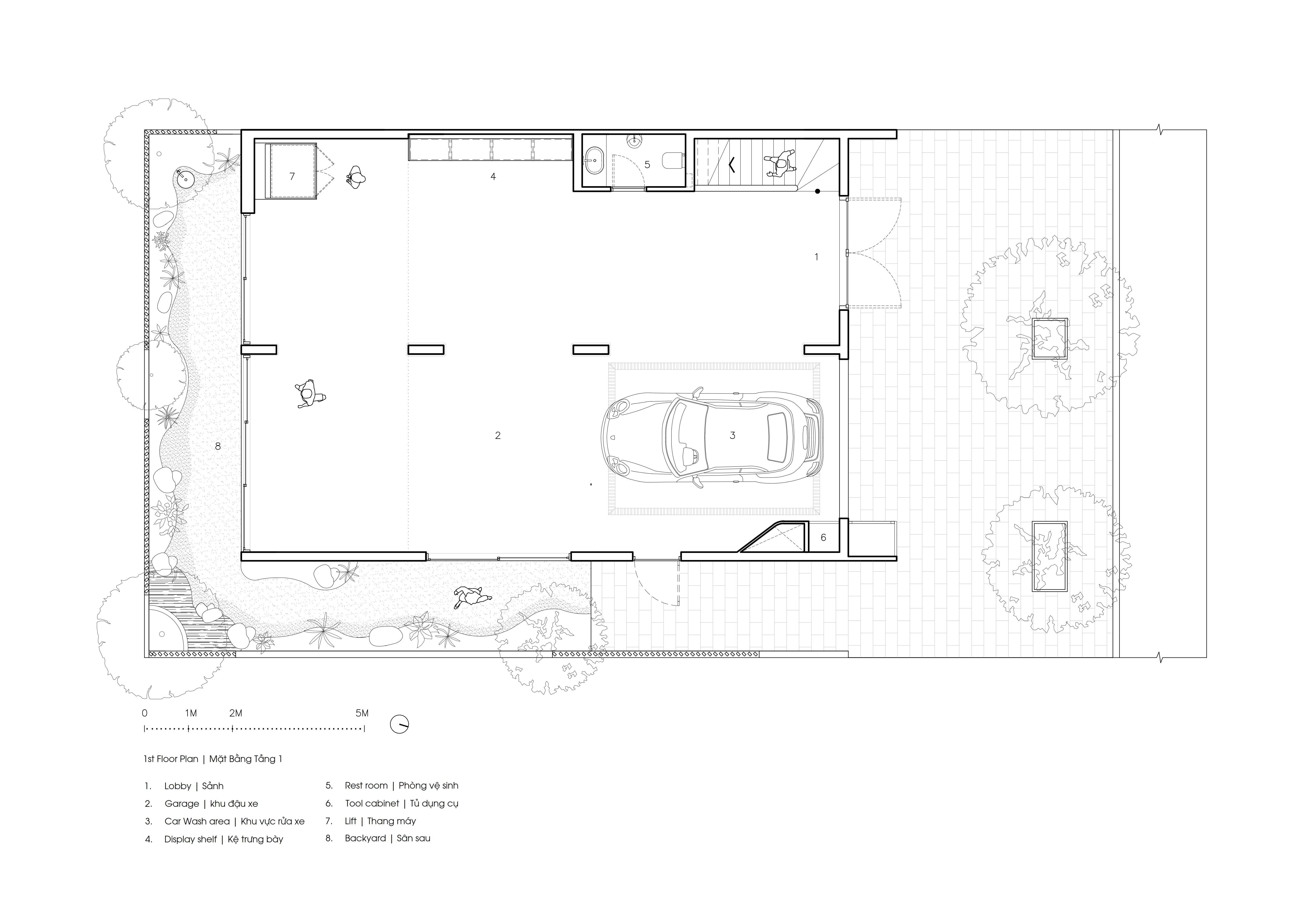
Toàn bộ tầng trệt được sử dụng để làm gara – không chỉ đơn thuần là nơi để xe, mà còn là không gian trưng bày bộ sưu tập xe của gia chủ. Bởi với niềm đam mê sưu tầm và gìn giữ những mẫu xe yêu thích, khu vực này trở thành một phần quan trọng trong ngôi nhà, vừa mang tính công năng, vừa phản ánh rõ nét sở thích cá nhân.

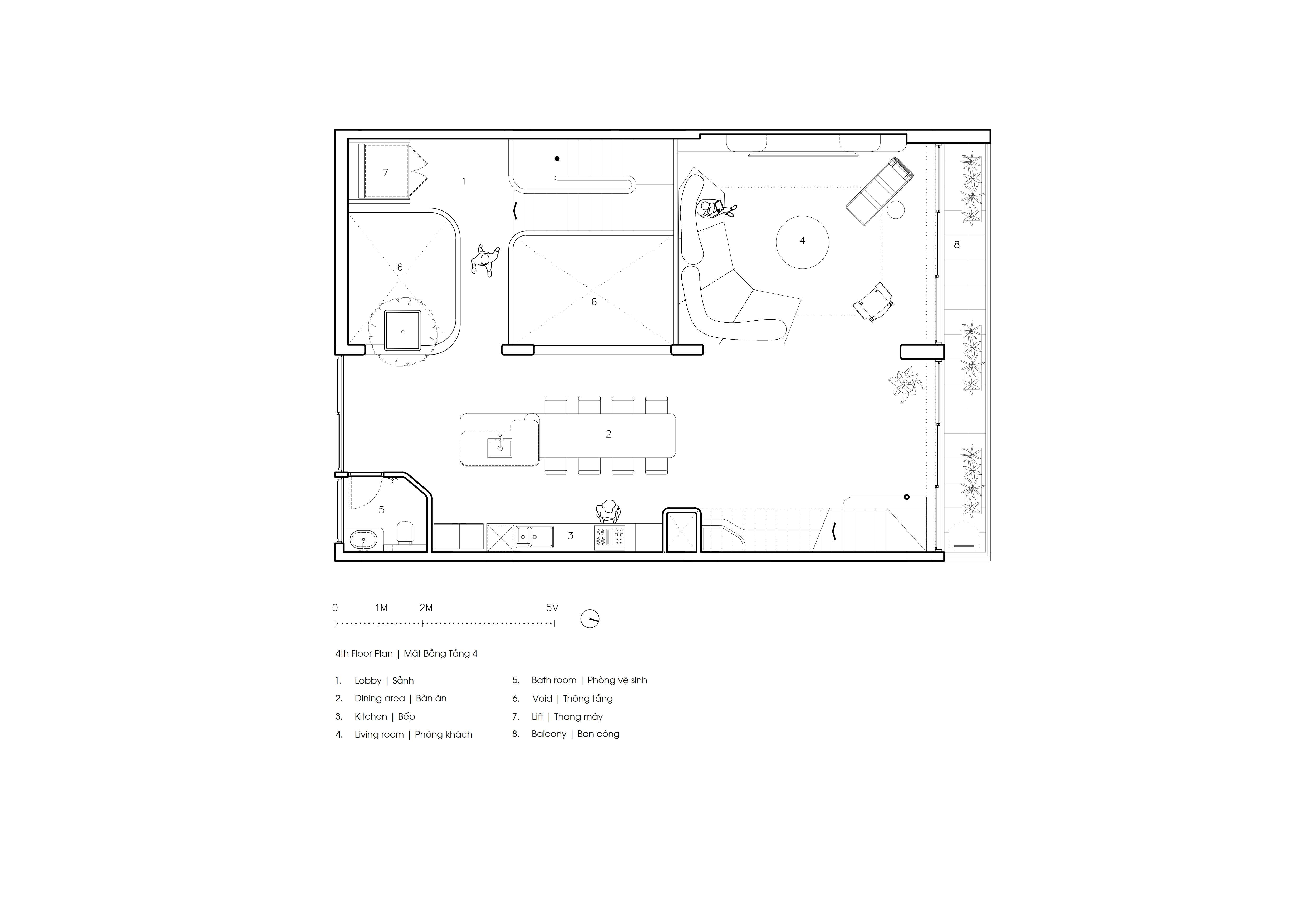
Tầng 2 được sử dụng như một văn phòng nhỏ với bàn làm việc dài gần cửa kính lớn để đón ánh sáng tự nhiên. Góc sofa không chỉ dùng để tiếp khách mà còn là nơi lý tưởng để thư giãn. Ngoài ra, chúng tôi còn bố trí 1 pantry để phục vụ nhu cầu ăn uống đơn giản, bên cạnh là phòng kỹ thuật đảm bảo toàn bộ hệ thống của ngôi nhà hoạt động ổn định.

Tầng 3 là không gian riêng tư với phòng ngủ master và phòng ngủ phụ cho khách. Tại sảnh thông tầng, ánh sáng từ bộ đèn thả thủy tinh hiện đại trở thành điểm nhấn thị giác, kết nối 2 khoảng thông tầng. Phòng ngủ master giữ tinh thần tối giản để tôn lên tầm nhìn hướng công viên và trần sao lấp lánh. Phòng tắm mở liền kề khu thay đồ, nơi chiếc bồn tắm rải sỏi bên khung cửa sổ mang lại cảm giác thư giãn ngay khi bước chân vào. 

Phòng ngủ phụ được thiết kế với hệ vách giấu cửa cho tủ quần áo. Với một bên là cửa sổ lớn, đối diện giường là vách kính hướng ra sảnh thang giúp kết nối và tăng cảm giác thoáng đãng cho không gian. Hệ giặt sấy âm tủ được giấu khéo léo trong cả hai phòng ngủ, đáp ứng nhu cầu sinh hoạt tiện nghi mà vẫn giữ sự gọn gàng cho tổng thể.

Phòng khách là khu vực duy nhất trong nhà sử dụng tivi với vách thông tầng phía sau được bo cong hài hòa với tổng thể. Toàn bộ khu vực này, đội ngũ thiết kế sử dụng ánh sáng gián tiếp là chủ yếu, ngoài ra chúng tôi chọn những mẫu đèn trang trí đơn giản nhưng mang đầy tính biểu tượng để tạo nên hiệu ứng thị giác thú vị cho người sử dụng, mô típ trần sao tiếp tục được sử dụng nhưng mang lại cảm giác hoàn toàn khác vào buổi tối.

Phòng khách là khu vực duy nhất trong nhà sử dụng tivi với vách thông tầng phía sau được bo cong hài hòa với tổng thể. Toàn bộ khu vực này, đội ngũ thiết kế sử dụng ánh sáng gián tiếp là chủ yếu, ngoài ra chúng tôi chọn những mẫu đèn trang trí đơn giản nhưng mang đầy tính biểu tượng để tạo nên hiệu ứng thị giác thú vị cho người sử dụng, mô típ trần sao tiếp tục được sử dụng nhưng mang lại cảm giác hoàn toàn khác vào buổi tối. Không món đồ nội thất nào quá tách biệt khỏi không gian, từ bộ sofa On the Rocks đến bàn tròn vân travertine, hay chiếc ghế dài thư giãn đến hướng đến sự uyển chuyển trong bố cục tổng thể.

Tầng 5 được bố trí bàn làm việc và kệ sách với phong cách tối giản, nhấn bằng đèn bàn trụ cong và console trang trí tại sảnh thang.

Sự kết hợp giữa lối đi rải sỏi, thảm cỏ và những mảng cây nhiều tầng lá đặc trưng của vùng nhiệt đới biến tầng thượng vốn dĩ thô ráp trở nên đầy sức sống. Tại đây, chúng tôi bố trí khu kĩ thuật cùng bếp ăn ngoài trời với thiết kế đơn giản nhưng vẫn đảm bảo thẩm mỹ và tiện nghi cho việc sử dụng.

PHÒNG KHÁCH
BẾP ĂN
PHÒNG NGỦ
BẢN VẼ
THIẾT KẾ VÀ THI CÔNG
APS CONCEPT
NHÀ CUNG CẤP
DISTRICT EIGHT | EDRA | BAXTER | CIRKUS D'AGO | FLOS | LOUIS POULSEN | OCCHIO | VERPAN | LIEBHERR | BOSCH | ELICA | GALASSIA | OLYMPIA | TREEMME | FIORE | MOEN
PHOTOGRAPHY
ĐỖ SỸ
VỊ TRÍ
THÀNH PHỐ THỦ ĐỨC
DIỆN TÍCH XÂY DỰNG
905m2