JT HOUSE

Với mong muốn không gian được bao phủ cây xanh và tách biệt với không gian ồn ào nơi phố thị. Mặt tiền kiến trúc được thiết kế lớp vỏ bao che bởi lam sắt, cây xanh khiến ngôi nhà như được hít thở, trao đổi không khí. Hệ lam này cũng điều tiết tốt các yếu tố khí hậu, môi trường như: tiếng ồn, khói bụi, nắng mưa. Cùng với đó, Không gian sinh hoạt được bố trí linh hoạt theo nếp sống của 3 thế hệ.

Nằm giữa lòng đô thị nén đầy tiếng ồn và khói bụi, JT House hiện diện như một thực thể bảo vệ những giá trị sống cốt lõi của một gia đình đa thế hệ. Thay vì những mảng tường thô cứng thường thấy, mặt tiền ngôi nhà là sự kết hợp đầy tinh tế giữa hệ lam sắt mảnh và những dải cây xanh đan xen, tạo nên một “màng lọc kiến trúc” độc đáo. Hệ màng lọc này không chỉ mang tính thẩm mỹ mà còn giúp ngôi nhà được hít thở, trao đổi không khí, tán xạ ánh nắng trực diện và giảm bức xạ nhiệt, trong khi vẫn đảm bảo gió đối lưu xuyên suốt không gian.

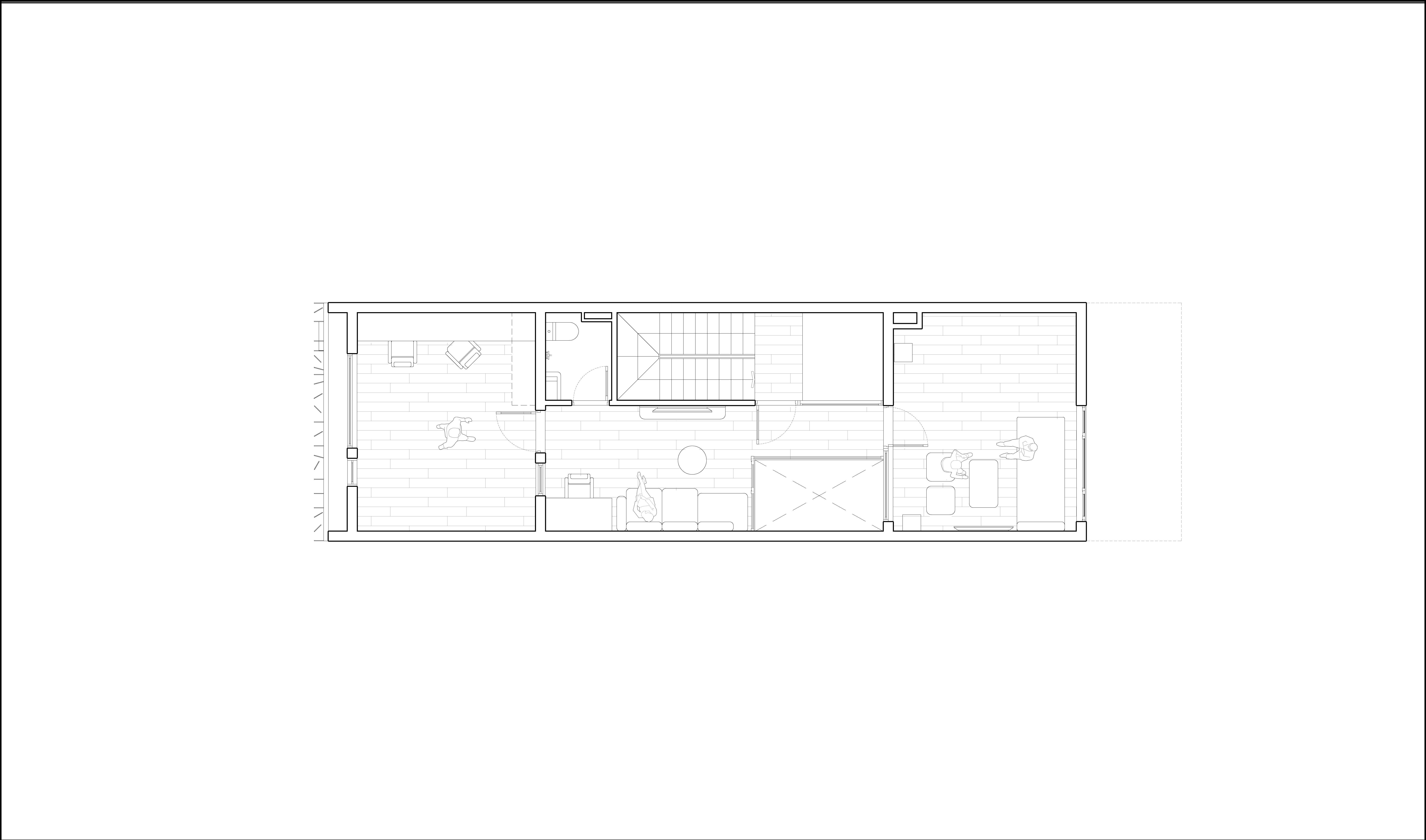
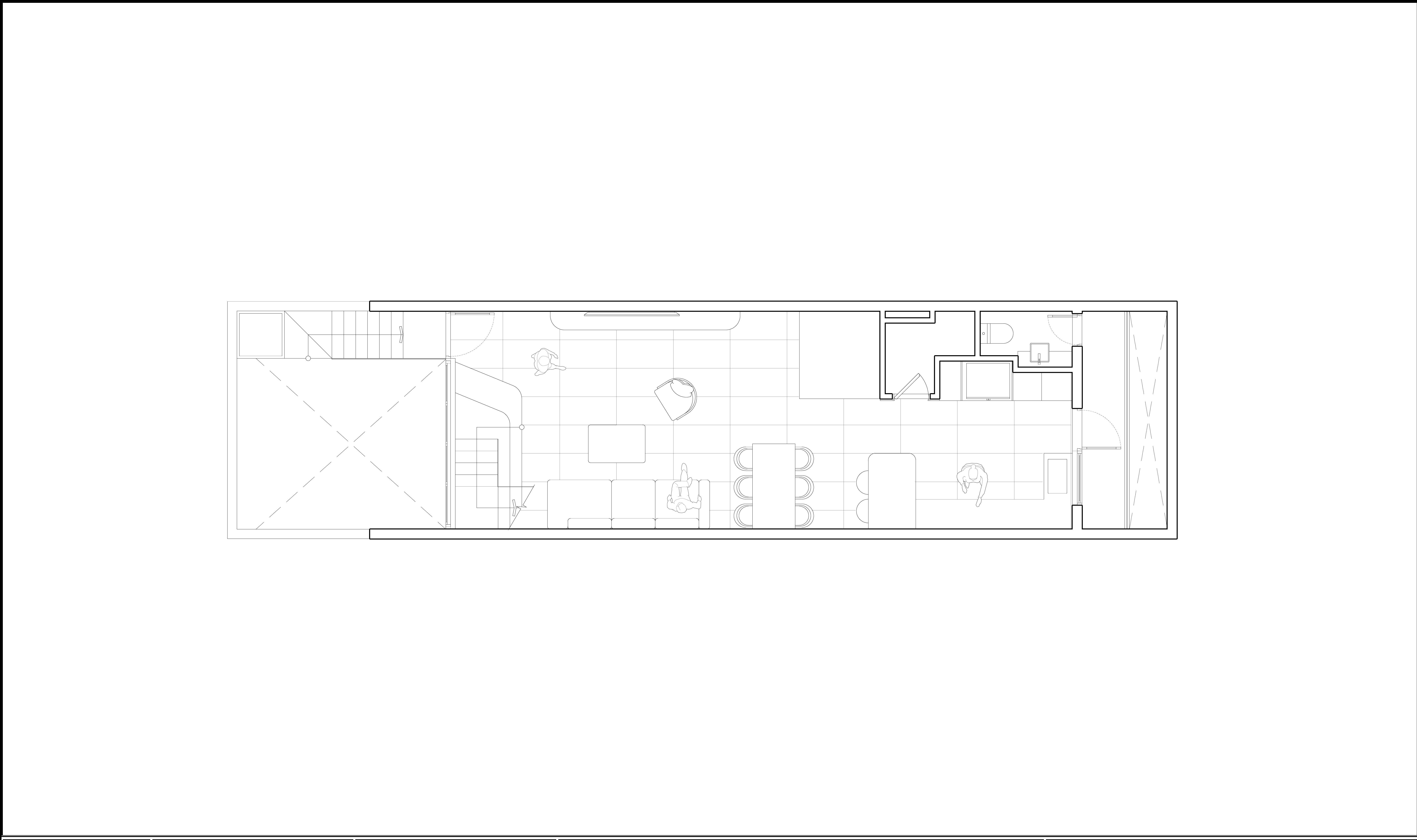
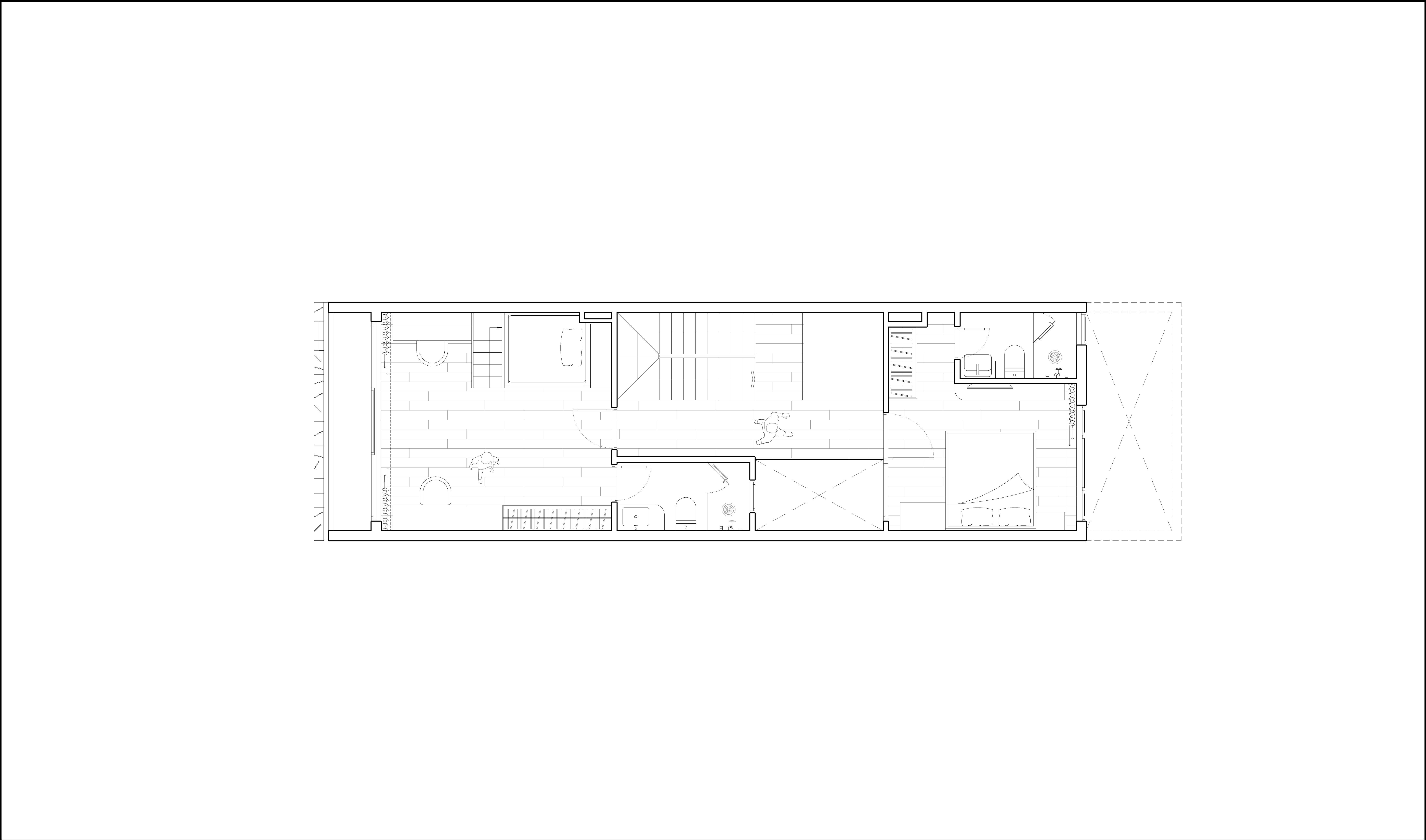
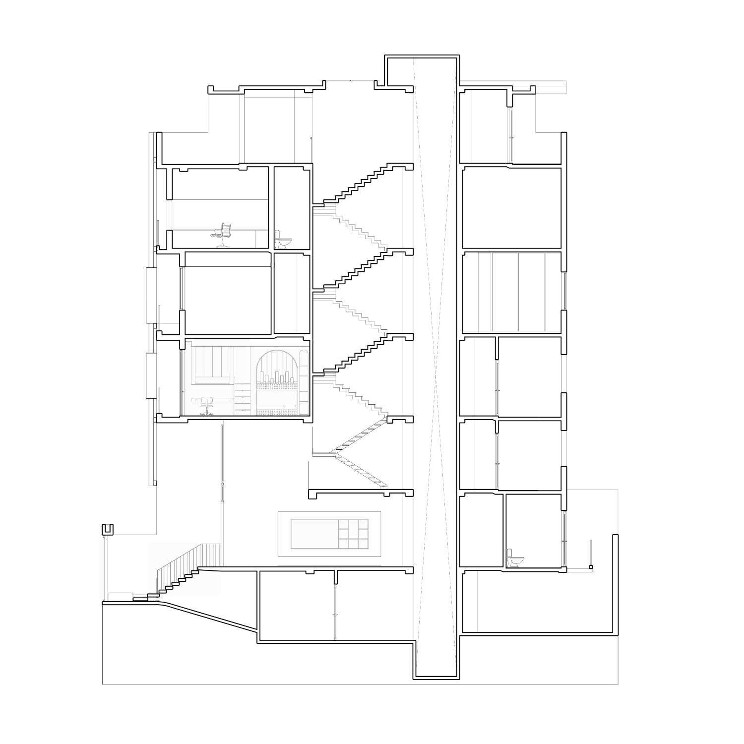
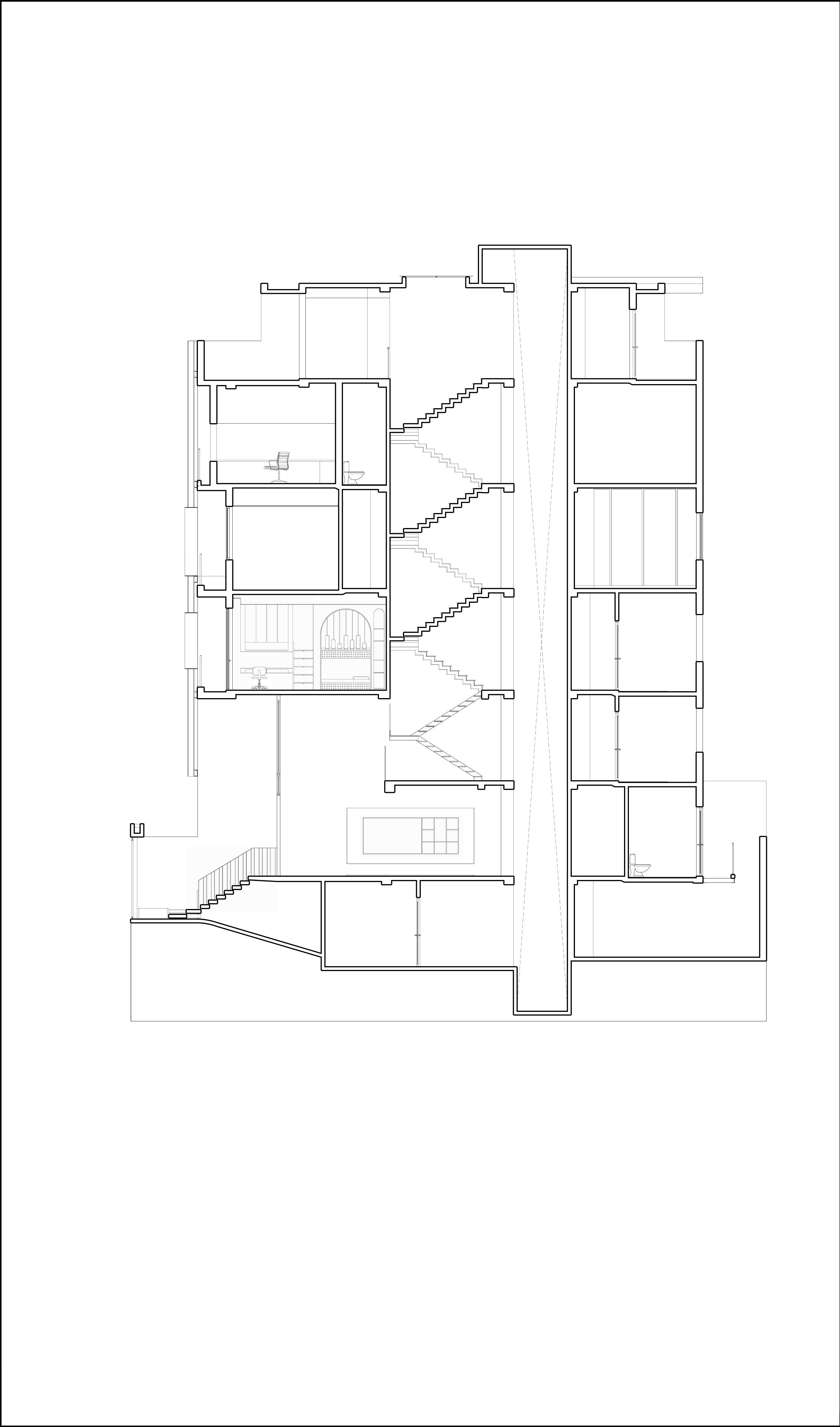
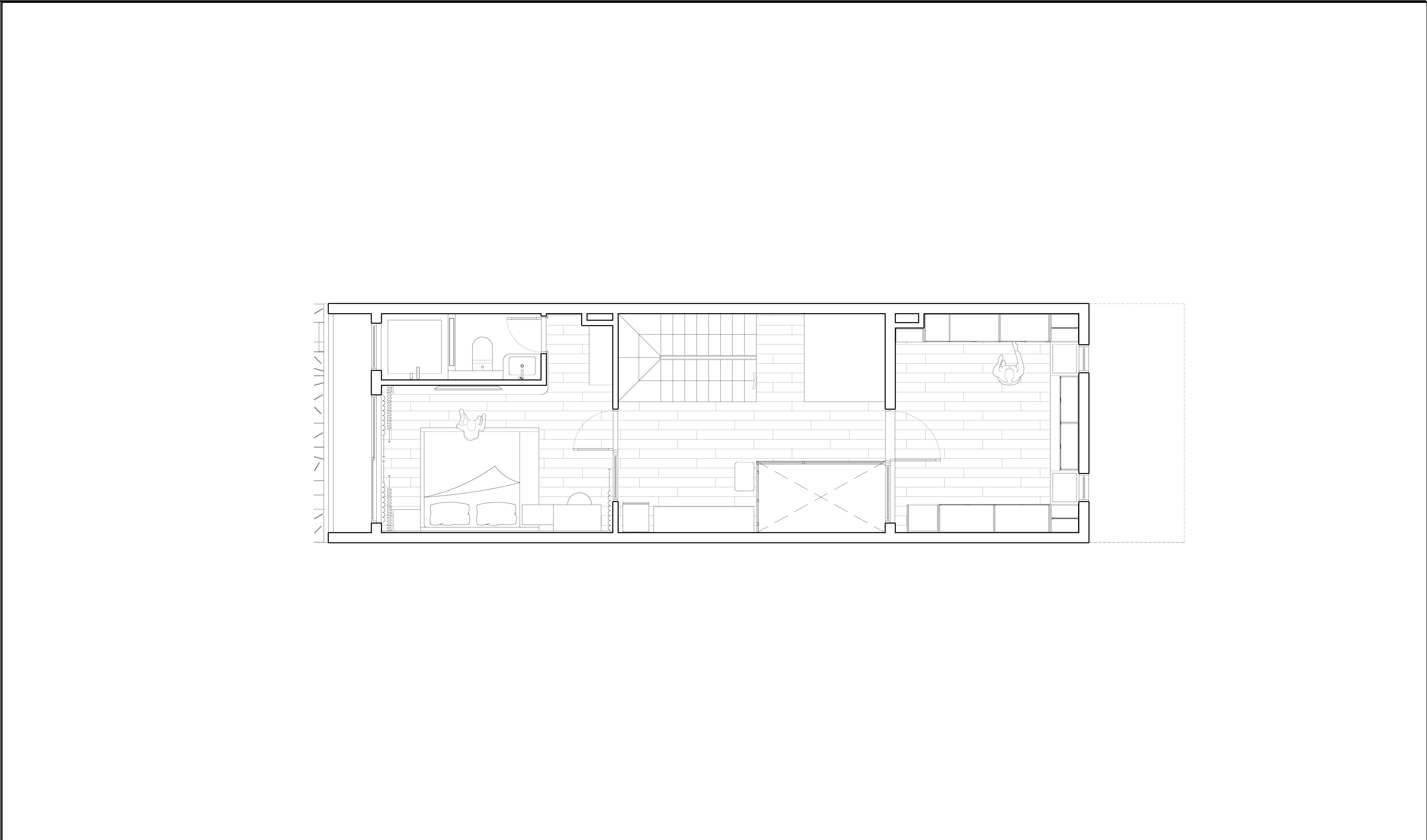
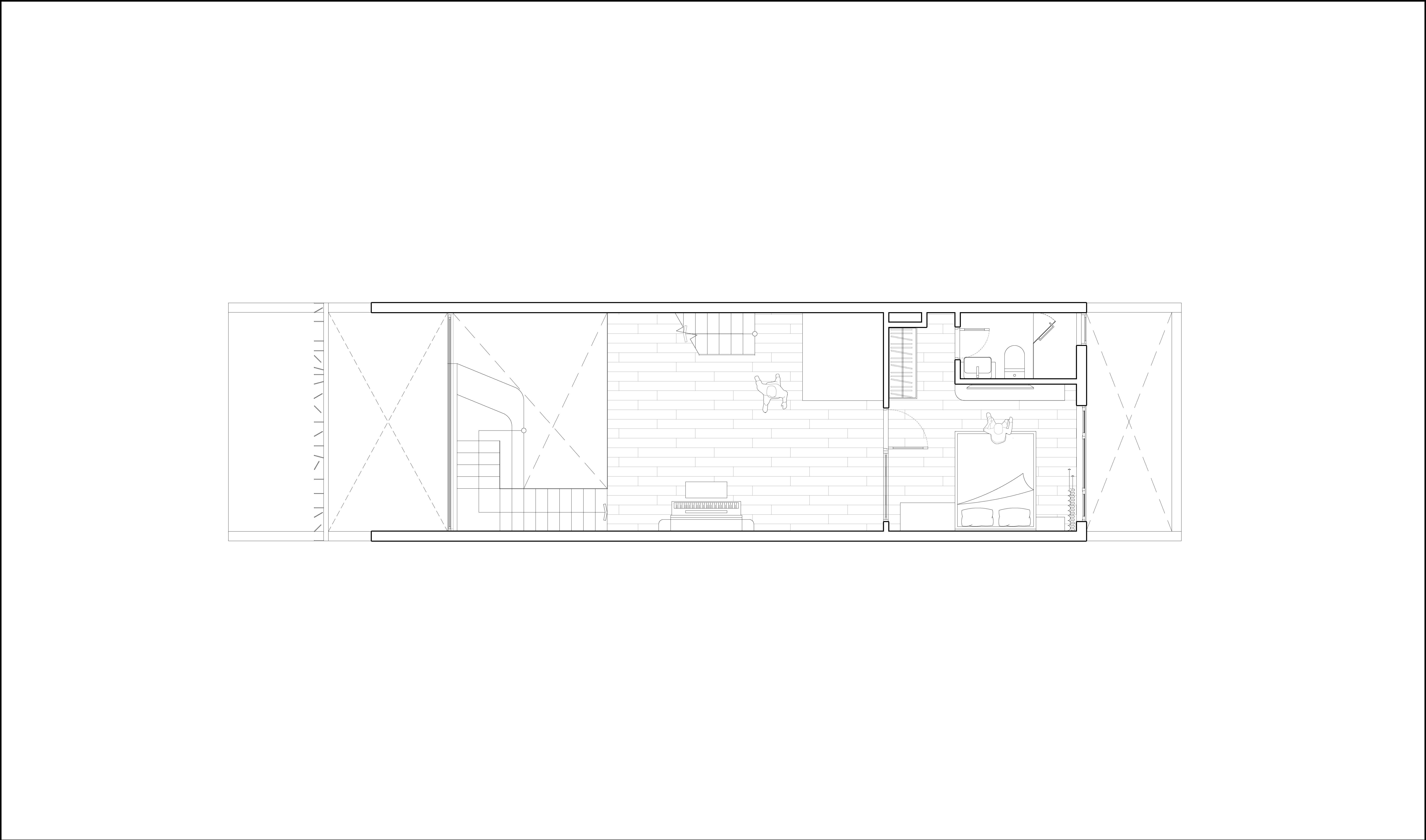
Để phù hợp với nếp sống “tam đại đồng đường”, cấu trúc bên trong được tính toán phân tầng linh hoạt. Hệ thống thông tầng và giếng trời được sắp đặt tài tình để ánh sáng tự nhiên có thể len lỏi vào từng góc nhỏ nhất của ngôi nhà. Đồng thời, các khu vực nghỉ ngơi được ưu tiên bố trí lùi sâu phía sau, nhằm đảm bảo sự yên tĩnh và tính riêng tư tuyệt đối cho từng thành viên trong gia đình.

Sự giao thoa giữa tính kỹ thuật và tâm hồn được thể hiện rõ nét qua ngôn ngữ thiết kế: ngoại thất gây ấn tượng bởi sự tương phản giữa chất liệu công nghiệp (lam sắt, bê tông) với vẻ mềm mại của cây xanh; trong khi đó, không gian nội thất là sự hòa quyện giữa phong cách Modern Industrial mạnh mẽ và tinh thần Minimalism tinh giản. Tất cả hội tụ lại để tạo nên một tổng thể cá tính, sang trọng nhưng vẫn đầy tinh tế.

Sự giao thoa giữa tính kỹ thuật và tâm hồn được thể hiện rõ nét qua ngôn ngữ thiết kế: ngoại thất gây ấn tượng bởi sự tương phản giữa chất liệu công nghiệp (lam sắt, bê tông) với vẻ mềm mại của cây xanh; trong khi đó, không gian nội thất là sự hòa quyện giữa phong cách Modern Industrial mạnh mẽ và tinh thần Minimalism tinh giản. Tất cả hội tụ lại để tạo nên một tổng thể cá tính, sang trọng nhưng vẫn đầy tinh tế.

Có thể nói, JT House không chỉ là một công trình kiến trúc, mà là một giải pháp sống bền vững, nơi thiên nhiên và con người cùng giao thoa để viết nên câu chuyện về một tổ ấm bình yên giữa lòng phố thị xô bồ.

HÌNH ẢNH THỰC TẾ
HÌNH 3D
BẢN VẼ
THIẾT KẾ VÀ THI CÔNG
APS CONCEPT
PHOTOGRAPHY
APS CONCEPT
VỊ TRÍ
THÀNH PHỐ HỒ CHÍ MINH
DIỆN TÍCH XÂY DỰNG
700m2