KR HOUSE

KR HOUSE – nhà phố mặt tiền quận Thủ Đức, TP.HCM không chỉ độc đáo với thiết kế đóng-mở linh hoạt, giải quyết vấn đề nắng nóng hướng Tây mà còn mang đậm dấu ấn , cá tính riêng của gia chủ.

KR House là dự án cải tạo một ngôi nhà cũ trong khu dân cư yên tĩnh. Ngôi nhà nằm ở hướng Tây, ban ngày nắng chiếu thẳng vào các phòng hướng mặt tiền nhưng các phòng bên trong lại thiếu sáng và khoảng thông khí gây cảm giác bí bách, ngột ngạt cho người sử dụng. Đội ngũ thiết kế cần tính toán bổ sung nguồn sáng tự nhiên, đối lưu không khí tạo cảm giác thoải mái nhất khi sinh hoạt trong ngôi nhà. Chủ nhân căn nhà là một người cá tính, yêu thích nghệ thuật nên việc xây dựng những ngôn ngữ thiết kế mang đậm dấu ấn cá nhân của chủ nhà cũng là một bài toán vô cùng thú vị. Mặt tiền ngôi nhà được thiết kế hai lớp thay đổi ở hai tầng để điều tiết ánh nắng và gió. 

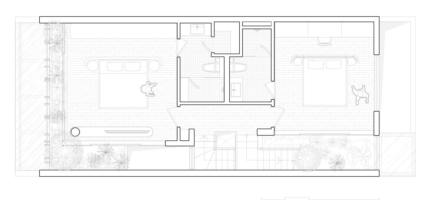
Tại lầu 1, phòng ngủ chính được ngăn cách với bên ngoài bằng hệ cửa kính Low E cách nhiệt, cách âm, lớp cây xanh và hệ lam gỗ bên ngoài để tạo không gian yên tĩnh và tránh ánh nắng trực tiếp.  

Ở lầu 2, hệ cửa sắt đục lỗ tự động bên ngoài và cửa kính trượt bên trong tạo nên hiệu ứng ánh sáng thú vị, điều chỉnh nhiệt độ, đồng thời tăng cường sự riêng tư trong phòng. Lấy màu đen làm chủ đạo, áp dụng các cường độ màu khác nhau cũng như sự khác biệt về sắc đen trên các bề mặt vật liệu tạo nên nhịp điệu nhịp nhàng cho tổng thể ngôi nhà mà không gây nhàm chán tạo nên một ngôn ngữ thiết kế nổi bật và có chiều sâu hơn cho ngôi nhà. 

Ngoài việc đổi hình thức cầu thang thành dạng áp sát tường để tối ưu hóa diện tích thì đội ngũ thiết kế chọn phương án tạo ra hai giếng trời trên cùng 1 trục để thu được nhiều ánh sáng và không khí tự nhiên nhất có thể, đồng thời bằng cách kéo các không gian sinh hoạt chính và phòng ngủ ra khỏi bức tường bên, tạo ra một đường rạch thông gió tự nhiên chạy cao và dài. Sự luân chuyển giữa các vế cầu thang kết hợp với việc “chơi đùa” ánh sáng và các vật liệu ở các tầng tạo nên hiệu ứng thị giác và tính linh động trong không gian. 

Các khu vực chức năng được sắp xếp hợp lý, liên kết với nhau tạo nên sự mở rộng về mặt thị giác. Khu vực sinh hoạt chung bao gồm phòng khách, bếp và phòng ăn được thiết kế liên thông, tạo không gian mở rộng rãi và tăng cường sự kết nối giữa các thành viên trong gia đình.

Hai phòng ngủ chính đều được bố trí các khung cửa sổ kính lớn để nhìn ra “khu vườn nhỏ” bên ngoài nhằm đạt được mối quan hệ cộng sinh giữa con người, cây cối và ngôi nhà, cũng như có thể dễ dàng kết nối không gian kín bên trong và không gian mở bên ngoài. Và ở mỗi phòng, chúng tôi đều dựa trên sự khác nhau ở tính cách, tuổi tác để thiết kế sao cho phù hợp với người sử dụng. 

Lầu 2 là nơi phục vụ cho nhu cầu giải trí và công việc cũng như thể hiện sở thích cá nhân của chủ nhà. Không gian sử dụng gam màu trắng xám chủ đạo để việc “chơi đùa” cùng màu sắc từ các vật dụng nội thất và ánh sáng trở nên hài hoà hơn. 

Tầng trên cùng là khoảng sân vườn tràn ngập cây xanh và ánh sáng tự nhiên. Ngôn ngữ thiết kế tối giản từ hình thức đến vật liệu nhưng đề cao chất lượng và sự tỉ mỉ trong đường nét, đồng thời các không gian được sắp đặt đầy dụng ý để tạo nên một trải nghiệm không gian mang tính cá nhân nhưng vẫn đảm bảo sự kết nối đa chiều với môi trường bên ngoài là điều mà đội ngũ thiết kế mong muốn mang đến trong KR House – “kết nối tĩnh lặng”.

PHÒNG KHÁCH
BẢN VẼ
THIẾT KẾ VÀ THI CÔNG
APS CONCEPT
NHÀ CUNG CẤP
UNIOS LIGHTING | USM | VICOSTONE | FORMICA | AN CƯỜNG |
PHOTOGRAPHY
QUANG DAM
VIDEO
Ở ĐÂY NHÀ ĐẸP PHẾT
VỊ TRÍ
THÀNH PHỐ THỦ ĐỨC
DIỆN TÍCH XÂY DỰNG
116m2