LES RÊVEURS

Les Rêveurs được thiết kế theo phong cách NewYork hiện đại pha lẫn một chút mộc mạc như ẩn mình vào khu rừng nhưng lại nổi bật theo một cách riêng. Sử dụng 2 loại vật liệu chính: sơn hiệu ứng giả bê tông và gỗ tự nhiện từ ngoài vào trong nhà để tạo cảm giác liền mạch, nhất quán và cũng như tối giản hóa vật liệu, màu sắc chủ đạo để nhấn mạnh các vật dụng trang trí nội thất bên trong nhà.

Ẩn mình giữa rừng thông ngút ngàn, Les Rêveurs Dalat là một biệt thự nghỉ dưỡng tiện nghi với 4 phòng ngủ, phòng khách, bếp và những khu sinh hoạt chung tiếp nối với thiên nhiên. Công trình mang ngôn ngữ hiện đại và thân thiện nhờ sự kết hợp của bê tông cùng gỗ tự nhiên và những mảng kính lớn mở ra bên ngoài.

“Bức tranh” thơ mộng của rừng thông vào những thời khắc trong ngày là tâm điểm của mọi góc nhìn từ phòng đọc sách, bàn ăn cho đến các phòng ngủ.

Ra đời sau những ngày cả nước căng mình vì đại dịch, Les Rêveurs được xem là một chốn “ẩn cư” cho những gia đình hoặc những nhóm bạn bè mong muốn tìm kiếm một trải nghiệm mới tại Đà Lạt. Ở đó, trẻ con được học tập, vui chơi trong những khu vực được thiết kế riêng biệt và trải nghiệm các hoạt động thú vị ngoài trời như trồng rau sạch, đi bộ xuyên rừng… Người lớn có không gian làm việc, đọc sách, thư giãn đầy tiện nghi với những góc nhìn thênh thang mở ra khu rừng.

Với ánh sáng nhân tạo, chúng tôi chủ yếu sử dụng màu vàng ấm tạo cảm giác thoải mái, xua đi cái lạnh của Đà Lạt cũng như làm nổi bật ngôi nhà khi khu rừng chìm trong màn đêm.

Đặc biệt, khu vực dành cho lửa trại và các buổi tiệc ngoài trời, trong nhà được xem là điểm nhấn của căn biệt thự với sự chăm chút tỉ mẩn từ những chỗ ngồi, vật liệu bàn ghế đến sỏi đá dưới chân hay những tán thông trên đầu. 

Kiến tạo một không gian chỉn chu, trang nhã trong một bối cảnh xinh đẹp có lẽ không khó bằng việc thổi cho nó một sức sống, một cảm giác ấm áp của nơi được gọi là “nhà”. (Dù đó là một ngôi nhà dài lâu hay chỉ gắn bó trong vài ngày). Les Rêveurs đã thật sự mang một cá tính, một dấu ấn riêng khác biệt và thi vị. Nơi những kẻ lãng du có thể đến, mơ mộng và hòa mình với thiên nhiên để thấy cuộc đời này vẫn còn những giấc mơ hiện hữu ngay bên mình!

PHÒNG KHÁCH
PHÒNG NGỦ
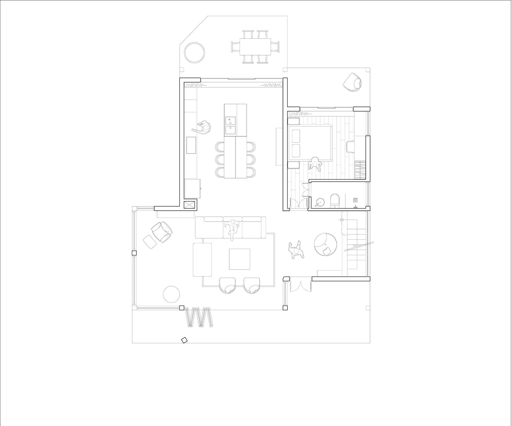
BẢN VẼ
THIẾT KẾ VÀ THI CÔNG
APS CONCEPT
VỊ TRÍ
THÀNH PHỐ ĐÀ LẠT
DIỆN TÍCH XÂY DỰNG
223m2