MAI ANH ĐÀO VILLA

Mai Anh Đào Villa là sự giao thoa giữa kiến trúc bản địa và ngôn ngữ đương đại. Với triết lý thiết kế tối giản và cân bằng, công trình đề cao cảm giác ấm cúng cùng sự gắn kết mật thiết với tự nhiên Vật liệu chính là gỗ tự nhiên tông nâu ấm kết hợp sàn đá xám trung tính, tạo nền không gian trầm và ổn định. Các khu sinh hoạt chung được tổ chức mở, tận dụng tối đa ánh sáng tự nhiên qua hệ cửa kính lớn. Hình khối kiến trúc được nhấn mạnh bởi hệ mái chữ A ở tầng thượng, kết hợp khung lam và vách kính nhằm tăng khả năng lấy sáng và mở tầm nhìn

Ngôi nhà tọa lạc trên triền dốc với tầm nhìn ôm trọn khu nhà lồng đặc trưng, được thiết kế xoay quanh hệ mái dốc chữ A mộc mạc đúng tâm tư “được trở về” của gia chủ. Kiến trúc nương theo địa hình giật cấp, kết hợp khéo léo các vật liệu bản địa như đá rối vững chãi ở khối đế, hệ khung gỗ thông ấm áp và tường vữa khoáng thô mộc, tạo nên một không gian sống gần gũi nhưng vẫn đầy đủ tiện nghi. Công năng được ưu tiên cho sự sinh hoạt thuận tiện của hai vợ chồng tại tầng trệt, trong khi các khoảng nghỉ bình yên dưới mái dành riêng cho con cái mỗi khi về thăm, tất cả hòa quyện thành một tổng thể đậm chất tình và hồn đất Đà Lạt.

MAD Villa là sự kết hợp tinh tế giữa tinh thần kiến trúc đương đại và cảm giác thô mộc, gần gũi. Nội thất ưu tiên sử dụng vật liệu gỗ tự nhiên với tông màu nâu ấm chủ đạo, tạo nên sự tương phản hài hòa và vững chãi trên nền sàn đá xám trung tính. Các khu vực sinh hoạt chung được thiết kế theo lối mở, tận dụng hệ cửa kính lớn để xóa nhòa ranh giới giữa không gian sống và thiên nhiên, giúp ánh sáng len lỏi vào từng ngóc ngách.

Điểm nhấn kiến trúc nằm ở hệ mái chữ A cao vút trên tầng thượng, kết hợp cùng khung lam và vách kính tạo hình như một chiếc “lồng” đón sáng độc đáo, vừa mở rộng tầm nhìn vừa giữ được sự riêng tư cần thiết. Sự đan xen giữa đá hộc và gỗ ở mặt tiền không chỉ mang lại vẻ sang trọng mà còn gợi cảm giác mộc mạc của núi rừng. Đặc biệt, khoảng sân thượng dưới mái vát là một điểm chạm đầy nghệ thuật, nơi ánh nắng xuyên qua hệ lam gỗ tạo nên hiệu ứng bóng đổ kịch tính trên nền tường vữa khoáng và sàn terrazzo. Kết hợp với những bồn cây xanh, đây trở thành góc thiền tịnh lý tưởng để rũ bỏ mọi ồn ào..

Tổng thể công trình toát lên vẻ đẹp tĩnh tại, gần gũi nhưng vẫn đảm bảo tiện nghi, mang lại trải nghiệm nghỉ dưỡng đích thực giữa lòng Đà Lạt.

PHÒNG KHÁCH - BẾP
PHÒNG NGỦ
NGOẠI THẤT - CẢNH QUAN
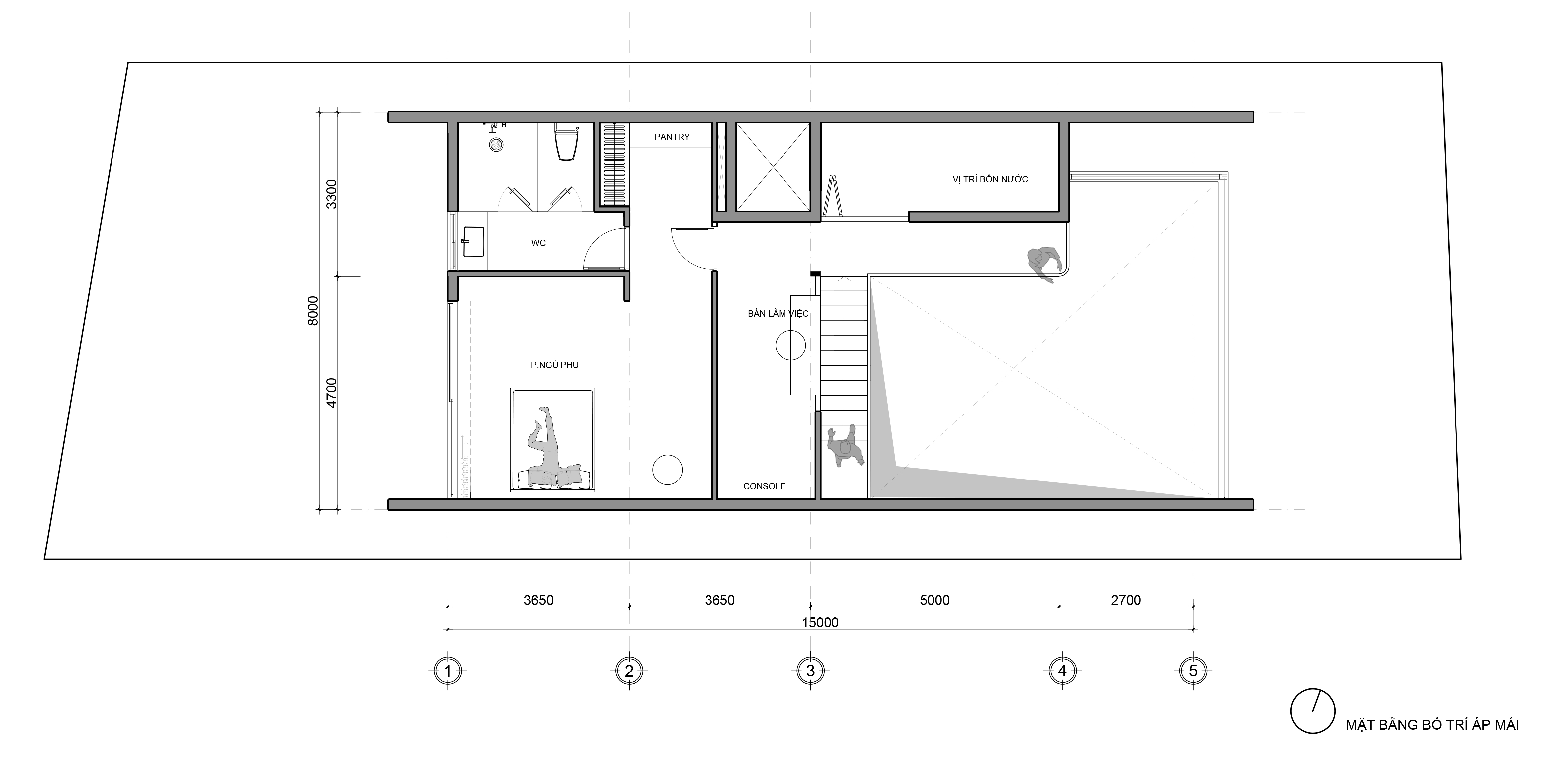
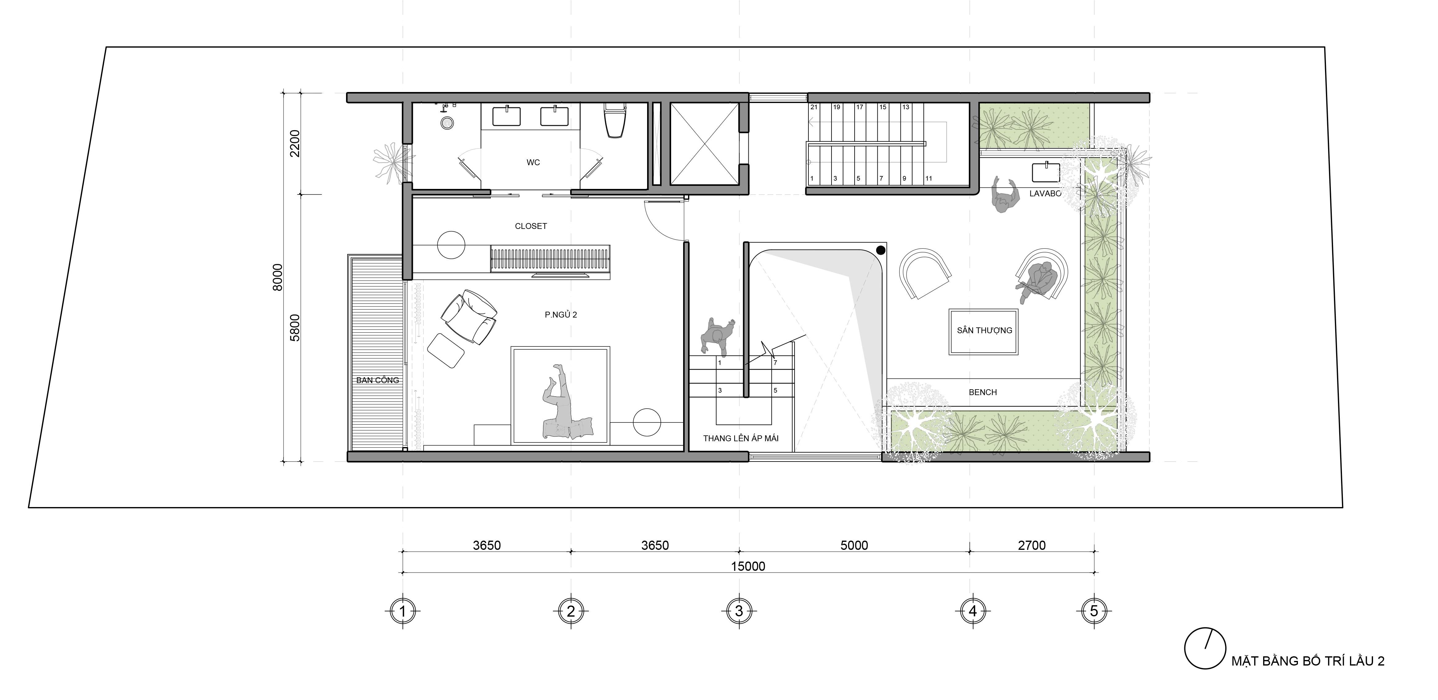
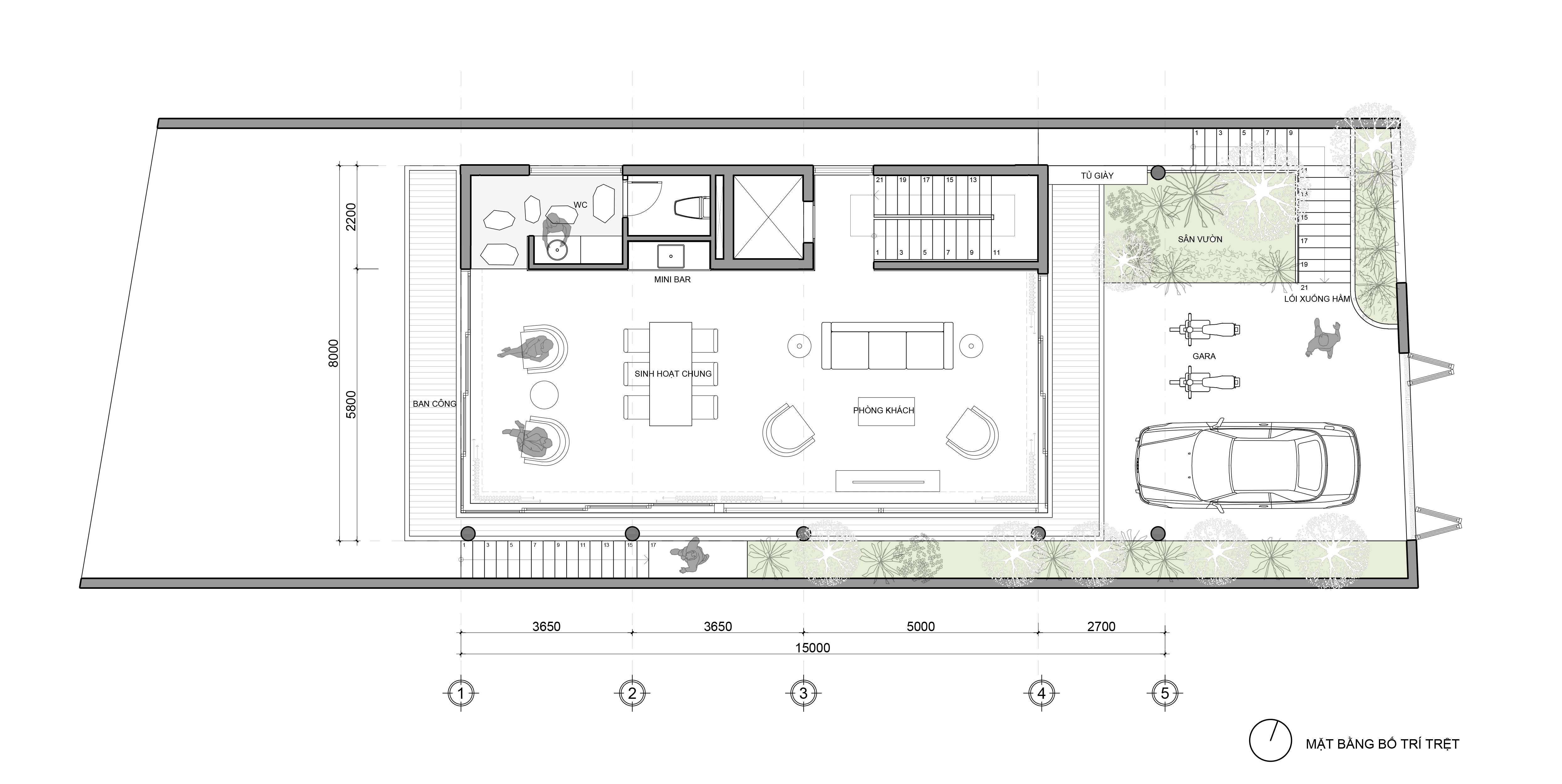
BẢN VẼ