The Krista Duplex

Căn hộ duplex được phát triển trên ngôn ngữ hiện đại, đan xen tinh tế những chi tiết mang âm hưởng Tân cổ điển thông qua sự kết hợp vật liệu có tính toán. Lược bỏ những chi tiết rườm rà không cần thiết, chúng tôi ưu tiên sự trang nhã đến từ những đường nét tinh giản. Bằng cách giải phóng tầm nhìn, không gian luôn duy trì được sự thoáng đãng, mang lại cảm giác nhẹ nhàng và thanh lịch trong từng góc nhìn.

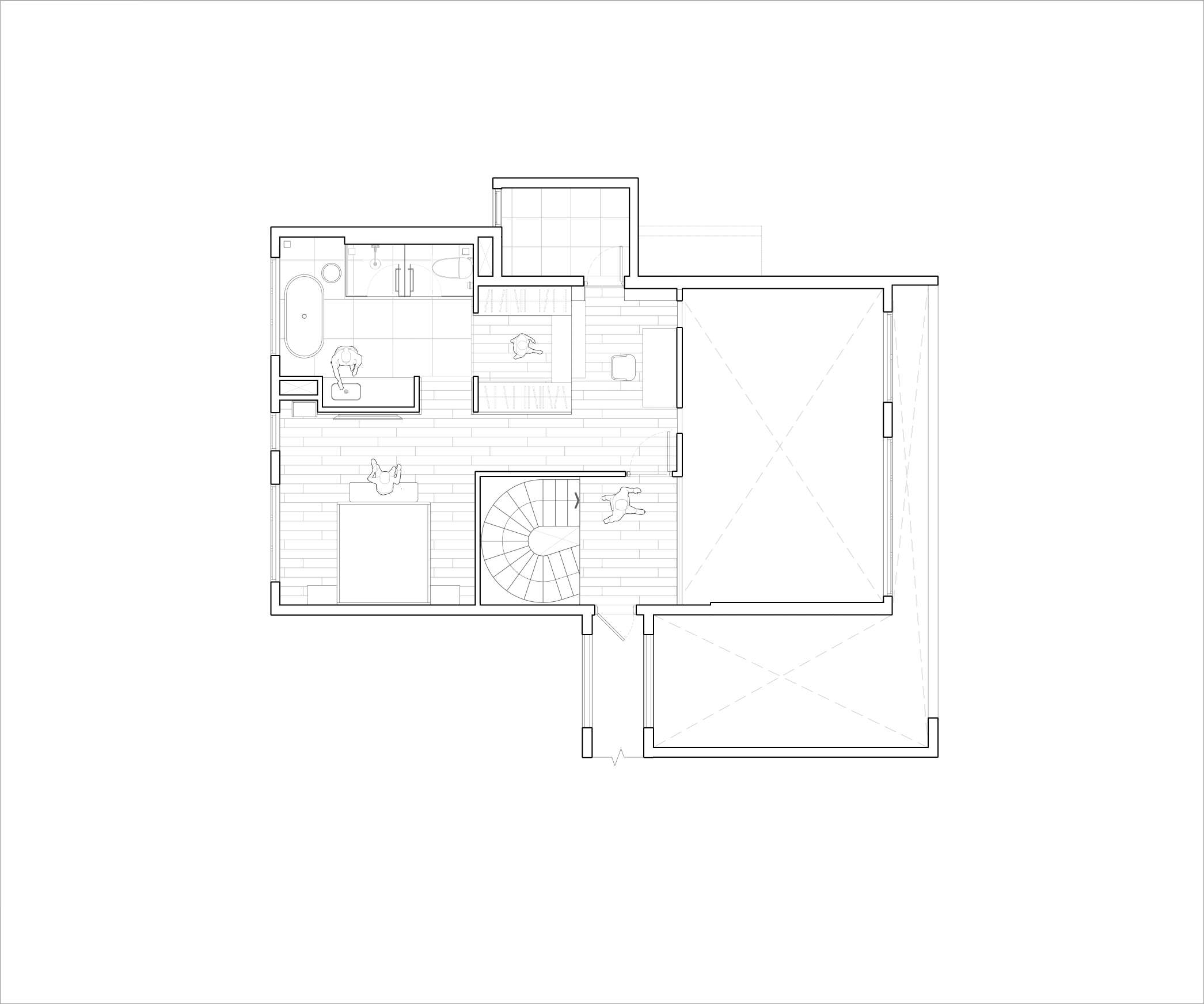
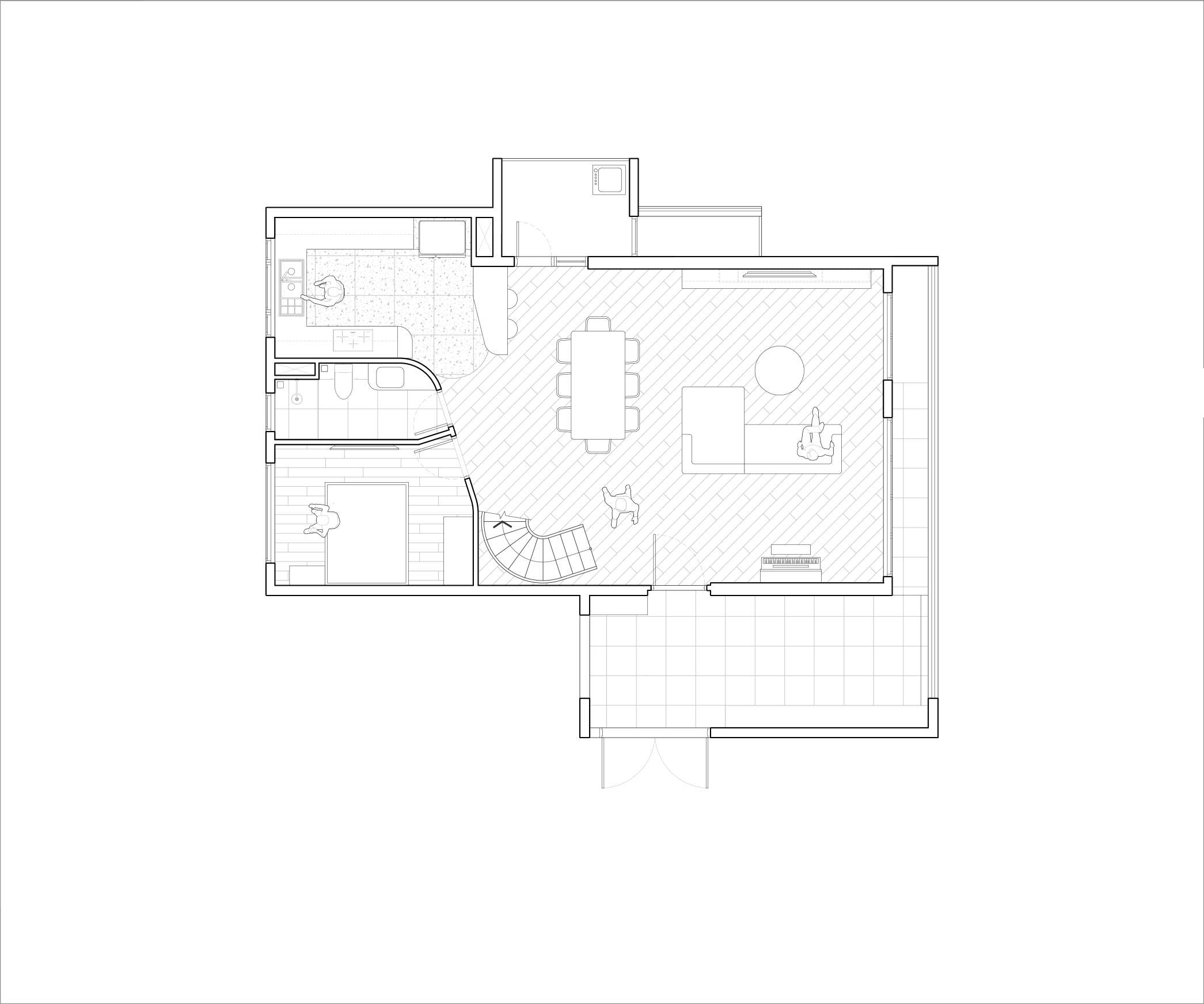
Mặt bằng của The Krista Duplex được giải quyết dựa trên đặc điểm kết cấu riêng biệt của từng tầng nhằm xóa nhòa ranh giới giữa nội thất và ngoại cảnh, mang lại cảm giác thoáng đãng cho không gian.

Mặt bằng Tầng 1 (Trục Sinh hoạt chung): Tầng 1 được thiết kế theo cấu trúc không gian mở. Trục Khách – Ăn – Bếp nằm trên một dải liền mạch, tối đa hóa diện tích tiếp xúc với hệ ban công rộng lớn bên ngoài. Bố trí này không chỉ mở rộng góc nhìn mà còn cho phép luồng gió tự nhiên lưu thông xuyên suốt.

Mặt bằng Tầng 2 (Trục Không gian riêng tư): Layout tầng 2 được tinh chỉnh tỉ mỉ để mỗi milimet đều phục vụ cho nhu cầu riêng tư của chủ mà vẫn đảm bảo tiếp cận được hệ cửa sổ lớn kịch trần. Giường ngủ và bồn tắm nằm được đặt tại các vị trí đắc địa nhất để tận hưởng tối đa ánh sáng tự nhiên và tầm nhìn thoáng đãng.

PHÒNG KHÁCH - BẾP
PHÒNG NGỦ
BẢN VẼ
THIẾT KẾ VÀ THI CÔNG
APS CONCEPT
VỊ TRÍ
THÀNH PHỐ THỦ ĐỨC
DIỆN TÍCH XÂY DỰNG
210m2